Projet/
Projet SUIVANTMaison Atelier ch. Wohlen
Wohlen, Argau, Suisse
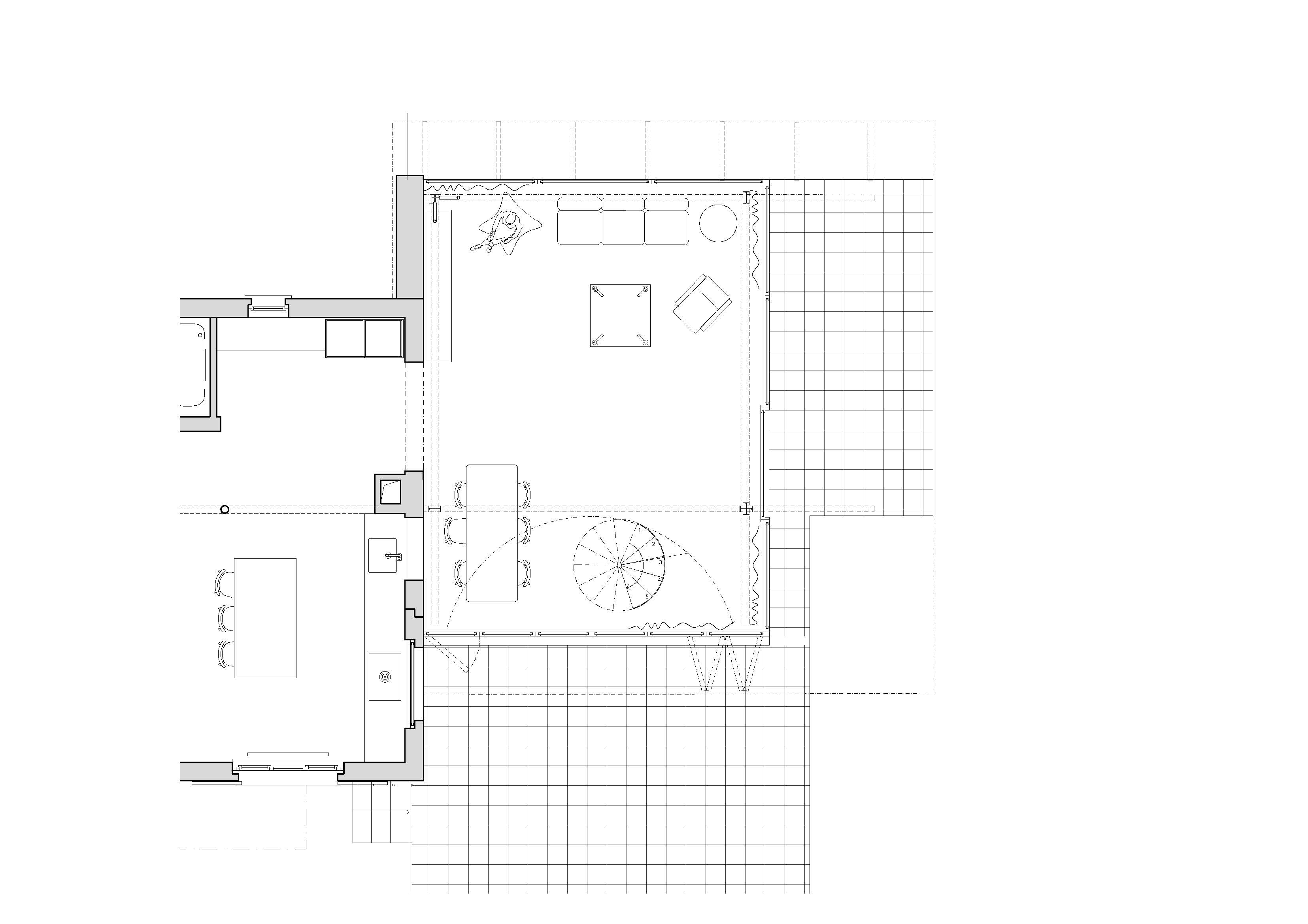
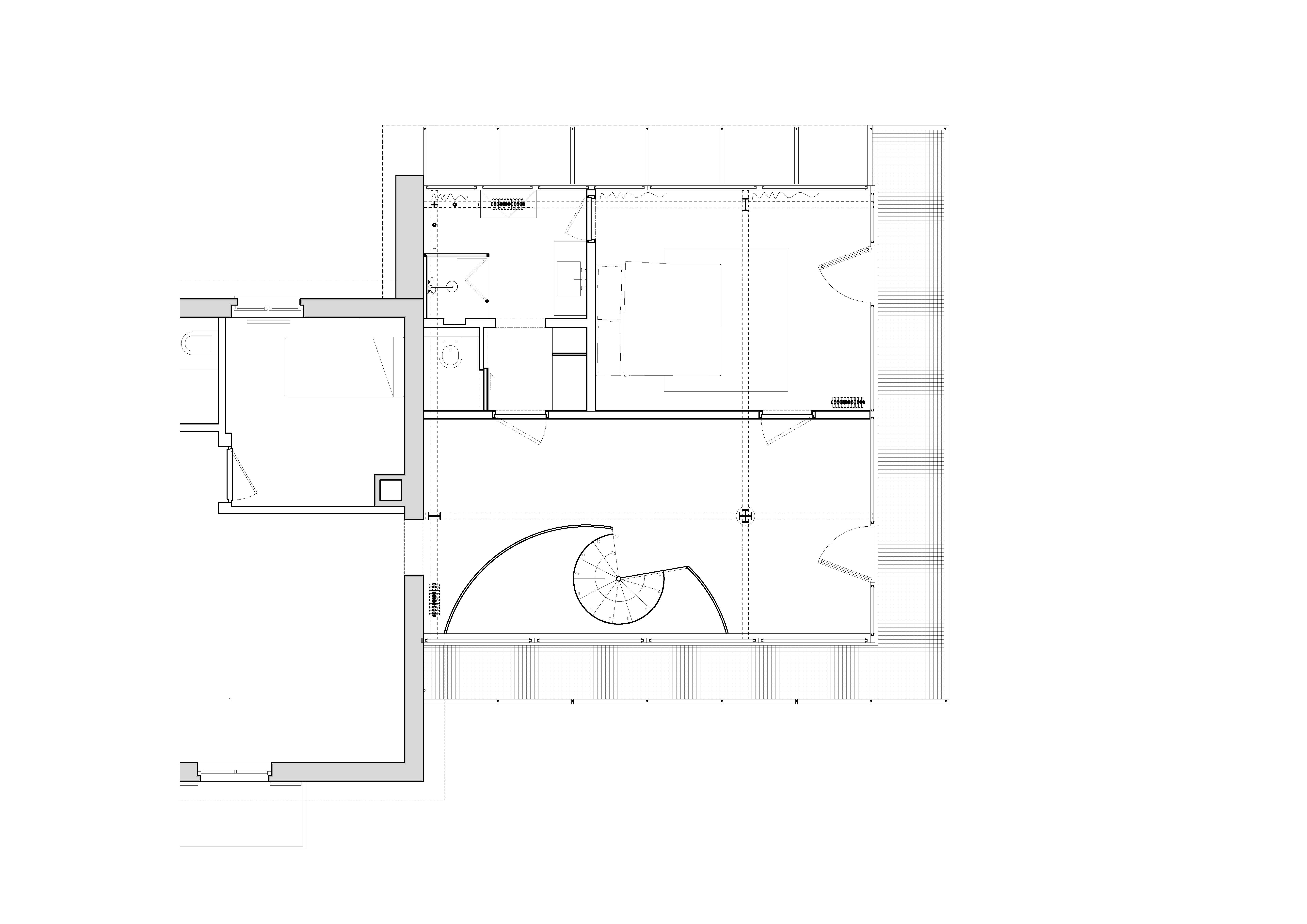
À Wohlen, en Suisse, une maison des années 1950 s’ouvre sur une nouvelle dimension. Plutôt que de remodeler l’existant, nous avons ajouté une extension qui dialogue avec l’ancien bâtiment : même volume, mêmes proportions, mais une présence légère et vivante. Transparente et modulable, elle relie enfin les espaces intérieurs au jardin, la vie quotidienne à la lumière, l’architecture à l’expérience sensible.
La structure hybride — acier, béton, bois — s’articule autour de quatre poteaux, disposés sur une trame de 5 × 5 mètres. Chaque élément est pensé pour porter sans peser, soutenir sans enfermer. Les poutres prolongent l’intérieur en porte-à-faux, formant balcons et surplombs qui captent la lumière et le vent. La façade vitrée enveloppe l’extension comme une membrane fragile et réfléchissante, reflétant le ciel, les saisons, et la vie qui s’y déploie.
À l’intérieur, la structure devient langage : les poteaux et poutres ne portent pas seulement le bâtiment, ils orientent la circulation, définissent les ambiances, sculptent l’espace. Les cloisons légères et les ouvertures modulables offrent une maison capable de se transformer au fil des usages. Chaque espace respire, se prolonge, se réinvente.
Cette maison est pensée comme un organisme vivant. Elle peut se démonter, se déplacer, se réadapter. La structure n’est pas seulement technique : elle est ossature et poésie, armature et souffle. Elle soutient et libère, fixe et ouvre, crée un cadre sans limiter la vie.
La technique rencontre le sensible et la sensoriel. L’acier, le bois et le béton dialoguent avec la lumière, les ombres et le mouvement des habitants. L’intérieur et l’extérieur se répondent. L’extension ne se contente pas d’ajouter des mètres carrés : elle propose un art d’habiter hybride et flexible, où chaque geste, chaque regard, chaque pas est mis en relation avec l’espace, la lumière et le monde qui l’entoure.
Type
Résidentiel privé
Mission
Constructions
Intérieurs
Surface
180
m2
Livraison
2024-2025
Maitrise d'oeuvre ++ Gwendoline Eveillard Architecture + bürodrü ++
Ingénieurs ++ Schnetzer Puskas
























